| 価格 |
340万円 | 交通 | 仙山線 「北山」駅 徒歩4分 |
|---|---|---|---|
| 土地面積/坪数 | 319.70㎡ / 96.7坪 | 所在地 | 宮城県仙台市青葉区北山2丁目 |
| 建ぺい率 | 60% | 容積率 | 160% |
売地
| 価格 |
340万円 | 交通 | 仙山線 「北山」駅 徒歩4分 |
|---|---|---|---|
| 土地面積/坪数 | 319.70㎡ / 96.7坪 | 所在地 | 宮城県仙台市青葉区北山2丁目 |
| 建ぺい率 | 60% | 容積率 | 160% |
「利回り」は、当該不動産の1年間の予定賃料収入の不動産取得対価に対する割合であり、公租公課その他当該物件を維持するために必要な費用の控除前のものです。
また、予定賃料収入が確実に得られる事を保証するものではありません。

仙台市青葉区エリアでの住まいなら、350万円のこちらの土地はいかがでしょうか。建築条件なしなので、建築についてじっくり考えられるというメリットがあります。建築は住宅限定の土地となります。住まい探しでお悩みの点はございませんか。不動産の悩みや質問など、どのようなことでもぜひお気軽に当社へお問い合わせください。
※地図上の物件位置は近隣に物件が所在することを表すものであり、実際の物件所在地とは異なる場合がございます。
022-217-9511
営業時間:10:00~18:00 / 定休日:土日祝(時期により無休)
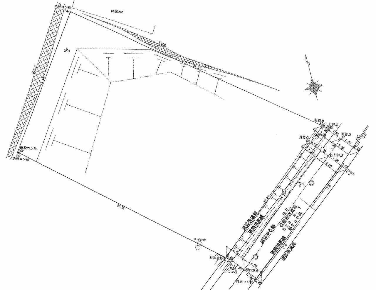
| 所在地 | 宮城県仙台市青葉区北山2丁目 | ||
|---|---|---|---|
| 交通 | 仙山線 「北山」駅 徒歩4分 | ||
| 価格 | 340万円 | 坪単価 | 3.52万円 |
| 土地面積 | 319.70㎡ | 建築条件 | 無 |
| 土地権利 | 所有権 | 建ぺい率/容積率 | 60%/ 160% |
| 私道負担面積 | 79.33㎡ | セットバック | 9.26㎡ |
| 接道状況 | 一方 (南東側 私道3.3m 間口12.8m) | ||
| 地目 | 宅地 | 地勢 | その他 |
| 土地の権利形態 | 開発面積 | ||
| 都市計画 | 市街化区域 | 用途地域 | 第一種住居地域 |
| その他法令上の制限 | 景観法 | ||
| 国土法届出 | 不要 | 取引態様 | 売主 |
| 現況 | 更地 | 引渡し | 即時 |
| 設備条件 |
公共下水 / プロパンガス
上下水道引込要。 |
||
| その他条件 | 上下水道引込無し・住宅(一戸建)建築に限る。 | ||
| 備考 | ・敷地内車輛侵入できません。(私道の一部階段の為) ・掘削承諾の関係上一戸建住宅建築のみの売渡条件となります。 ・敷地内に上下水道の引込はありませんので別途費用が発生します。 | ||
| 周辺の学校 | |||
| 物件番号 | 36044502 | ||
| 情報公開日 | 2025年12月12日 | 次回更新予定日 | 2025年12月26日 |
| 取引条件の有効期限 | 2025年12月26日 | ||
| 取扱い会社 |
パブリックエステート株式会社 〒980-0803 宮城県仙台市青葉区国分町3丁目10-17-202 宮城県知事(5)第4977号 |
||
022-217-9511
営業時間:10:00~18:00 / 定休日:土日祝(時期により無休)
| 所在地 | 物件の住所を表示。(詳細住所は表示していない場合もある) | ||
|---|---|---|---|
| 交通 | 物件(部屋)の沿線駅・バス停を表示。(複数駅・バス停の利用が可能な場合は最大3件まで) | ||
| 間取り/詳細 | 数字は居室数を表示。LDKはそれぞれ「リビング」「ダイニング」「キッチン」、S(納戸)とは「納戸」「サービスルーム」「マルチルーム」「フリールーム」など建築基準法第28条に適合していないため、居室と認められない納戸その他の部分を表す。 | ||
| 価格 | 販売されている住戸の価格を表示。仲介手数料は含まない。 | ||
| 管理費 | 共同住宅の設備その他共用部分の維持および管理をするために必要な費用を表示。 | ||
| 修繕積立金 | 共用部分の修繕のために積立てる金額を表示。 | ||

売地
| 価格 | 698 万円 | ||
|---|---|---|---|
| 土地面積 | 151.89㎡ | 建築条件 | |
| 土地坪数 | 45.94坪 | 坪単価 | 15.19万円 |
| 建ぺい率 | 50% | 容積率 | 80% |
| 住所 | 宮城県仙台市青葉区八幡7丁目 | ||
| 交通 |
仙山線「葛岡」駅 徒歩17分
|
||
【外観】